
Now the kids are getting older, and we like the house we are in, a second bathroom is ideally needed. With some interesting design - lots of planning and mocking up, throw in a bit of building, plumbing etc - and we made one.
Design
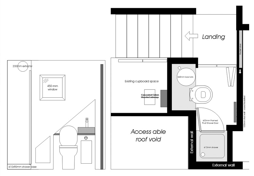
As we are attempting to create a bathroom in a very small space - which is literally the space taken up from a door entry into a room, we have to be clever. I drew up plans after measuring the space we had to work with. My idea was to take unused space from the loft which is next to the dormer. This will allow us to inset the sink and toilet, and give back precious floor space. As the bathroom is going in the corner of the roof dormer, we can afford a full height shower too. To sanity check the design, it was marked with tape and a cardboard scale toilet was made up to check it fits.

Planning drawings.

Testing out the layout.
Building
The building work was fairly straight forward. It involved cutting into the roof space through the dormer to create the inset. Then we had to make a new stud wall to separate the rooms. I opted for a pocket door that slides into the wall to maximise floor space for the existing room. Plastering then decoration with tiles and all the other bathroom parts were added. Electrical timeout switches were added for the heater and lights.

Starting to cut into the loft.

Recess appearing.

Pocket door frame.

Walls built.

Building into the recess.

Decorating.
Plumbing system
Hooking up to the house mains hot and cold was easy as the boiler is very close to the new bathroom. Waste was more of an issue as even though the soil stack is outside in a great location, running regular soil pipes was an issue. I opted to get a macerator to handle the sink and toilet waste as this is a very efficient way of removing waste water through smaller plumping. The shower waste outputs via a smaller pipe into the stack.

Macerator & cistern install.

Shower plumbing.
Project gallery
Here are some photos I took as the build progressed.
Back to projects